> Domy, Chalupy > Řadový dům o dispozici 4+kk ve StrakonicíchŘadový dům o dispozici 4+kk ve Strakonicích
V rámci nově realizované výstavby rodinných řadových domů pro Vás máme nabídku dvoupodlažní nemovitosti s dvojgaráží ve velmi lukrativní lokalitě města Strakonice.
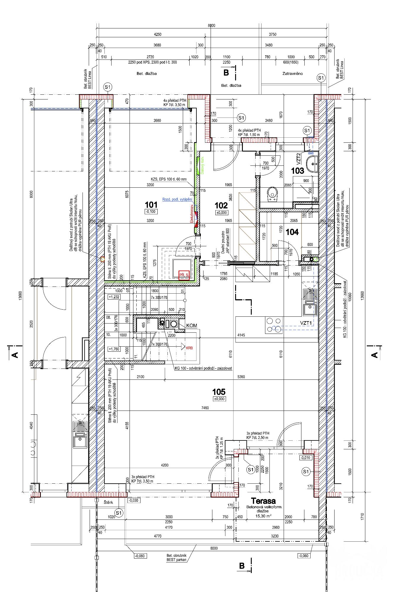
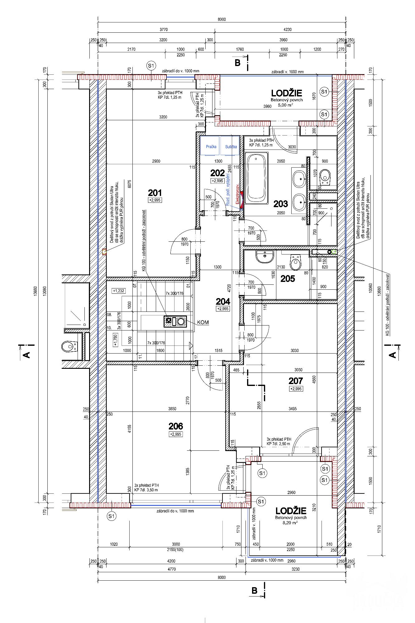
Nemovitost, která je v plánku vyznačena jako ,,Rodinný dům 5‘‘, je předposledním domem zástavby a nachází se ve východní straně zástavby. Zahrada navazující na jižní část domu je zakončena doplňkovou stavbou, která slouží jako sklad zahradního nářadí a pergola. Samotnou stavbu tvoří v 1NP: garáž, sociální zařízení (WC spojené s koupelnou), vstupní chodba, velký obývací pokoj spojený s kuchyní a jídelnou, spíž + vstup na terasu a přilehlou zahradu. 2NP tvoří 3 samostatné pokoje, dvě sociální zařízení (WC spojené s koupelnou), dvě lodžie přístupné ze všech obytných místností a komora. Stavba je v této fázi prodávaná jako ,,hrubá stavba‘‘ se zahradou. Po předchozí dohodě s developerem je možné dokončit stavbu do 100 % stavu. Tomu předchází odhad na dokončení stavby. V ceně jsou v současné době započteny zemní práce a základová deska, kompletní nosné i příčkové zdivo, stropní konstrukce nad přízemím, betonové schodiště a komín. Stavba je realizována bez oken a dveří, bez fasádního zateplení a bez střešního pláště. Nejsou provedeny žádné vnitřní instalace ani dokončovací práce (elektro, voda, kanalizace, topení, omítky, podlahy, sanita apod.). Další etapy výstavby budou řešeny samostatně.
| č. ev.: | 25J034 |
| Okres: | Strakonice |
| Obec, část obce: | Strakonice |
| Adresa: | Kopretinová |
| Kategorie: | Domy, Chalupy |
| Cena: | 5.745.000,- Kč |
| Plocha celkem: | 260 m2 |
| Zastavěná plocha: | 103 m2 |
| Obytná plocha: | 130 m2 |
| Užitná plocha: | 150 m2 |
| Zahrady: | 157 m2 |
| Elektřina: | 230/400 V |
| Energetická náročnost: | G - mimořádně nehospodárná |
| Voda: | Veřejný vodovod |
| Odpady: | Veřejná kanalizace |
| Plyn: | Ne |
| Topení: | Út - dálkové |
| Tepelné izolace: | Ne |
