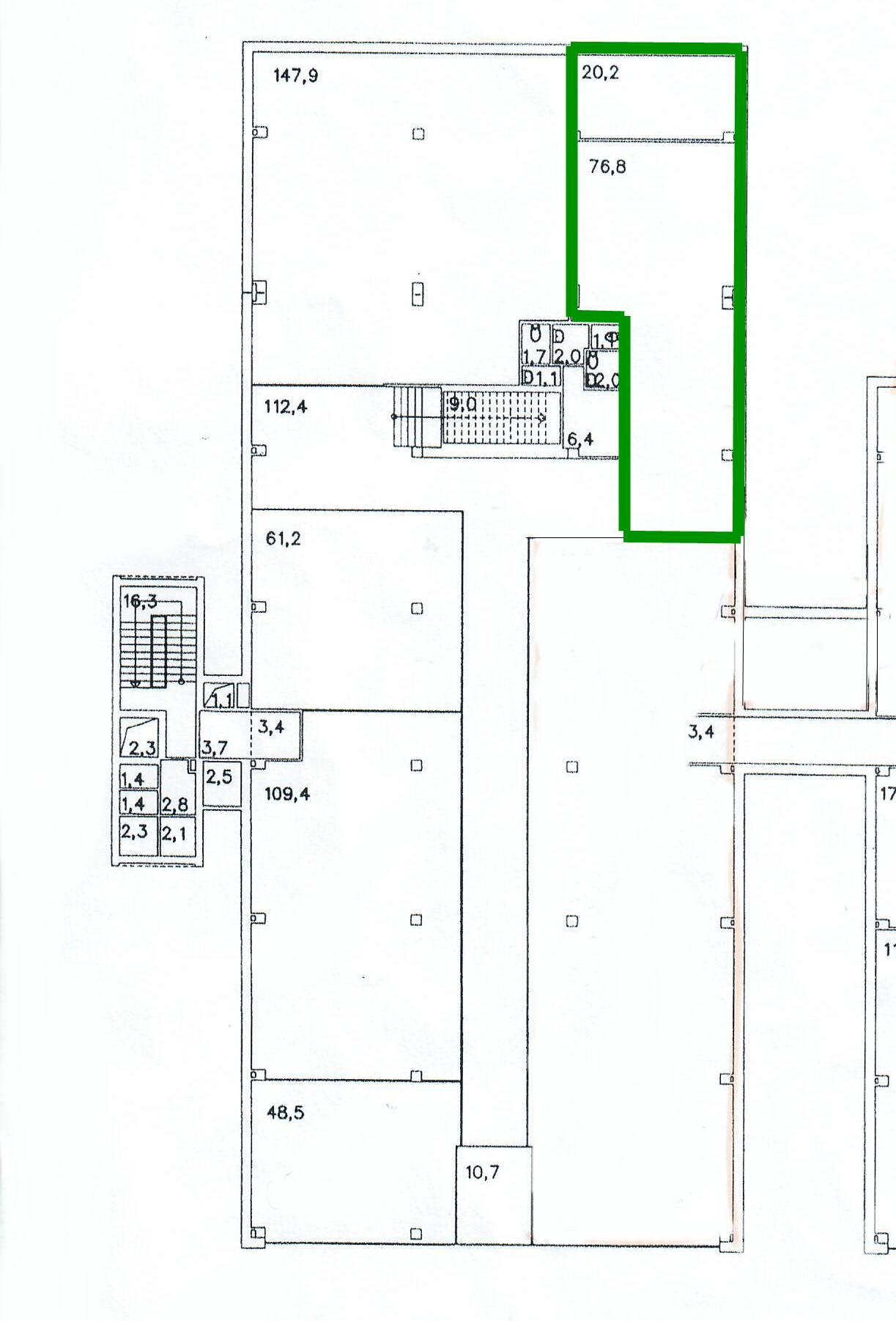
Přízemní nebytové prostory o celkové ploše 97 m2 v OD Hvězda
K pronájmu nabízíme nebytové prostory v přízemí obchodního domu Hvězda ve Strakonicích. Prostory o ploše 97 m² se skládají ze dvou částí - bývalá prodejna (77 m2) a kancelář/sklad (20 m2) a skýtají široké možnosti využití – ideální pro prodejnu, kancelář či jinou podnikatelskou činnost. Vstup do prodejny je chráněn stahovací mříží. Budovou denně projde velké množství lidí, v blízkosti se nachází cukrárna a obchod s potravinami. K dispozici je společné sociální zázemí a možnost parkování před budovou. Nájem 7.000,- Kč + zálohy na služby 5.500,- Kč. Při podpisu smlouvy se skládá vratná kauce 20.000,- Kč, platba na první měsíc a provize RK. Uvítáme vážné a solidní zájemce o dlouhodobý pronájem. Pronajímatel si vyhrazuje právo vybrat si nájemce na základě jím zvolených kritérií. Pro více informací a domluvu prohlídky nás neváhejte kontaktovat.
| č. ev.: | 25H164 |
| Okres: | Strakonice |
| Obec, část obce: | Strakonice, Strakonice I |
| Adresa: | Lidická |
| Kategorie: | Pronájmy, Podnikání, Různé |
| Cena: | 7.000,- Kč |
| Poznámka k cenám: | + zálohy na služby 5.500,- Kč |
| Plocha celkem: | 97 m2 |
| Elektřina: | 220/380 V |
| Energetická náročnost: | G - mimořádně nehospodárná |
| Voda: | veřejný vodovod |
| Odpady: | veřejná kanalizace |
| Plyn: | ne |
| Topení: | ÚT dálkové |

