> Byty > Byt 4+kk o obytné ploše 112 m² - StrakoniceByt 4+kk o obytné ploše 112 m² - Strakonice
K prodeji nabízíme prostorný byt 4+kk o obytné ploše 112 m², který svými rozměry a dispozičním řešením připomíná spíše bydlení v rodinném domě než klasický byt.
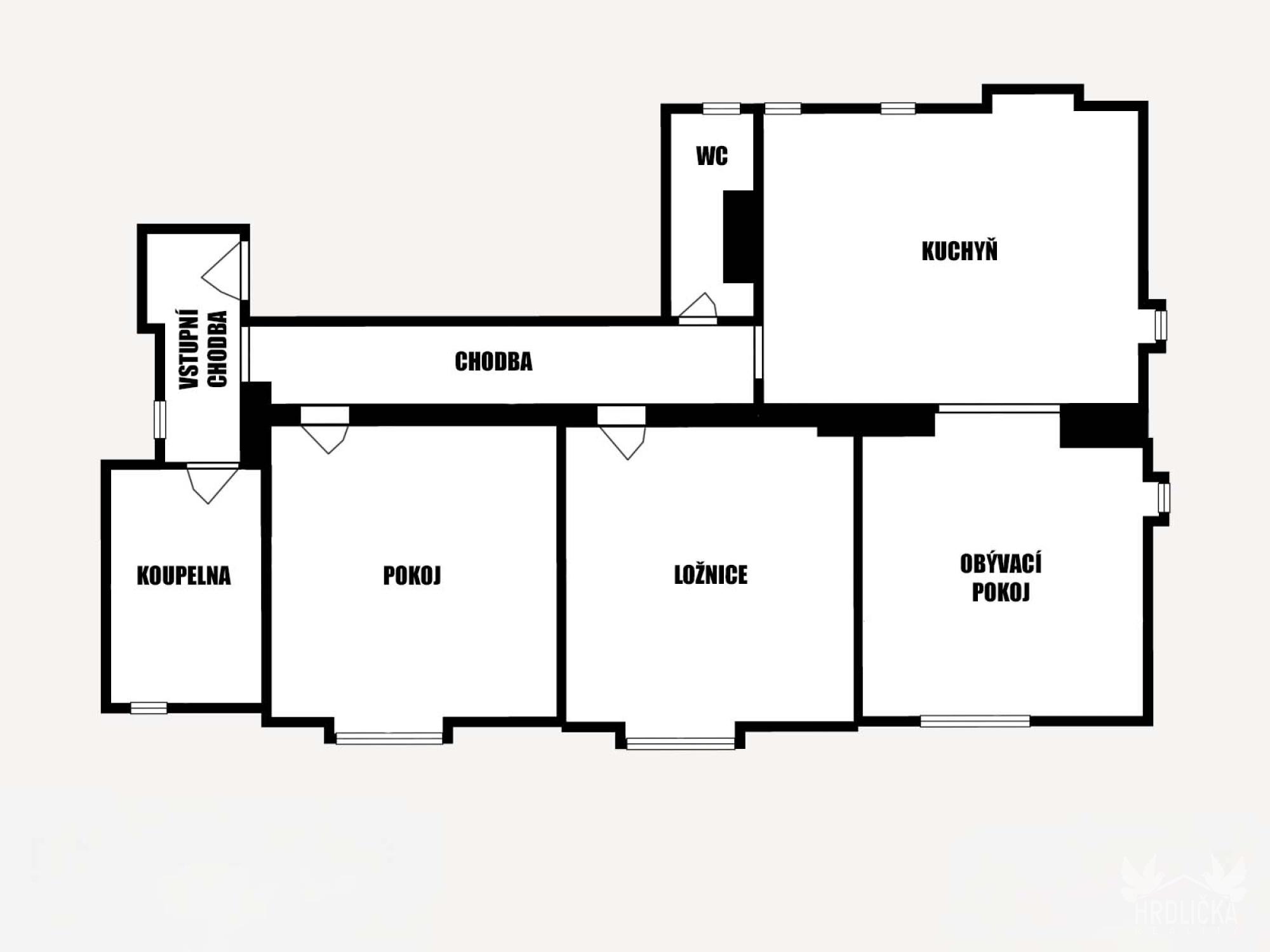
Nachází se ve 3. patře zatepleného zděného domu v ulici P. Bezruče ve Strakonicích. Byt vznikl vestavbou v původním půdním prostoru kolem roku 2000 dle architektonického návrhu a nabízí promyšlené, praktické uspořádání. Dispozice zahrnuje dva neprůchozí pokoje, obývací pokoj propojený s kuchyní a jídelnou, koupelnu s toaletou a další samostatné WC.
Díky velikosti bytu, orientaci na 3 světové strany a světlé výšce místností působí interiér velmi světlým a vzdušným dojmem.
V obytných místnostech jsou parkety, v koupelně a na toaletách dlažba. Kuchyň je vybavena stylovou kuchyňskou linkou a byt nabízí dostatek úložných prostor v podobě vestavěných skříní.
Díky vhodnému umístění původních komínových těles dispozice navíc umožňuje instalaci krbové vložky.
Součástí vybavení je mobilní klimatizace s odtahem teplého vzduchu přes okenní otvor řešený na míru bez nutnosti trvalých zásahů do oken. Koupelna je vybavena vanou se sprchovací zástěnou, bidetem, dvojumyvadlem a toaletou, druhé WC má vlastní umyvadlo a pisoár. Z jídelny je přímý vstup na balkon o velikosti 3,65 m². Byt je ve velmi dobrém technickém stavu a připraven k okamžitému nastěhování.
K jednotce náleží dvě propojené sklepní kóje.
Obyvatelé domu mohou využívat společnou kolárnu a sušárnu. Parkování je možné na pozemku SVJ, kapacita je však omezená.
Lokalita nabízí kompletní občanskou vybavenost i dobrou dopravní dostupnost a je vhodná pro rodinné bydlení i pro ty, kteří hledají nadstandardně prostorný byt v klidném prostředí.
| č. ev.: | 26J001 |
| Okres: | Strakonice |
| Obec, část obce: | Strakonice |
| Adresa: | P. Bezruče 632 |
| Kategorie: | Byty |
| Dispozice: | 4+kk |
| Typ domu: | Zděný |
| Cena: | 6.990.000,- Kč |
| Plocha celkem: | 115 m2 |
| Obytná plocha: | 112 m2 |
| Elektřina: | 230/400 V |
| Energetická náročnost: | C - úsporná |
| Voda: | Veřejný vodovod |
| Odpady: | Veřejná kanalizace |
| Plyn: | Ne |
| Topení: | Út - dálkové |
| Tepelné izolace: | Ano |
