> Byty > Byt 2+1, 53,6 m², Praha 5 – SmíchovByt 2+1, 53,6 m², Praha 5 – Smíchov
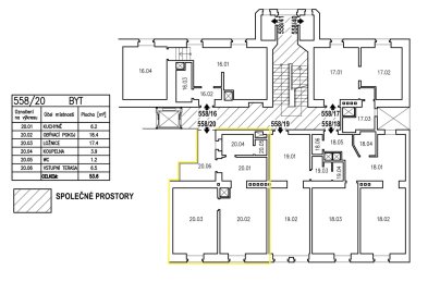
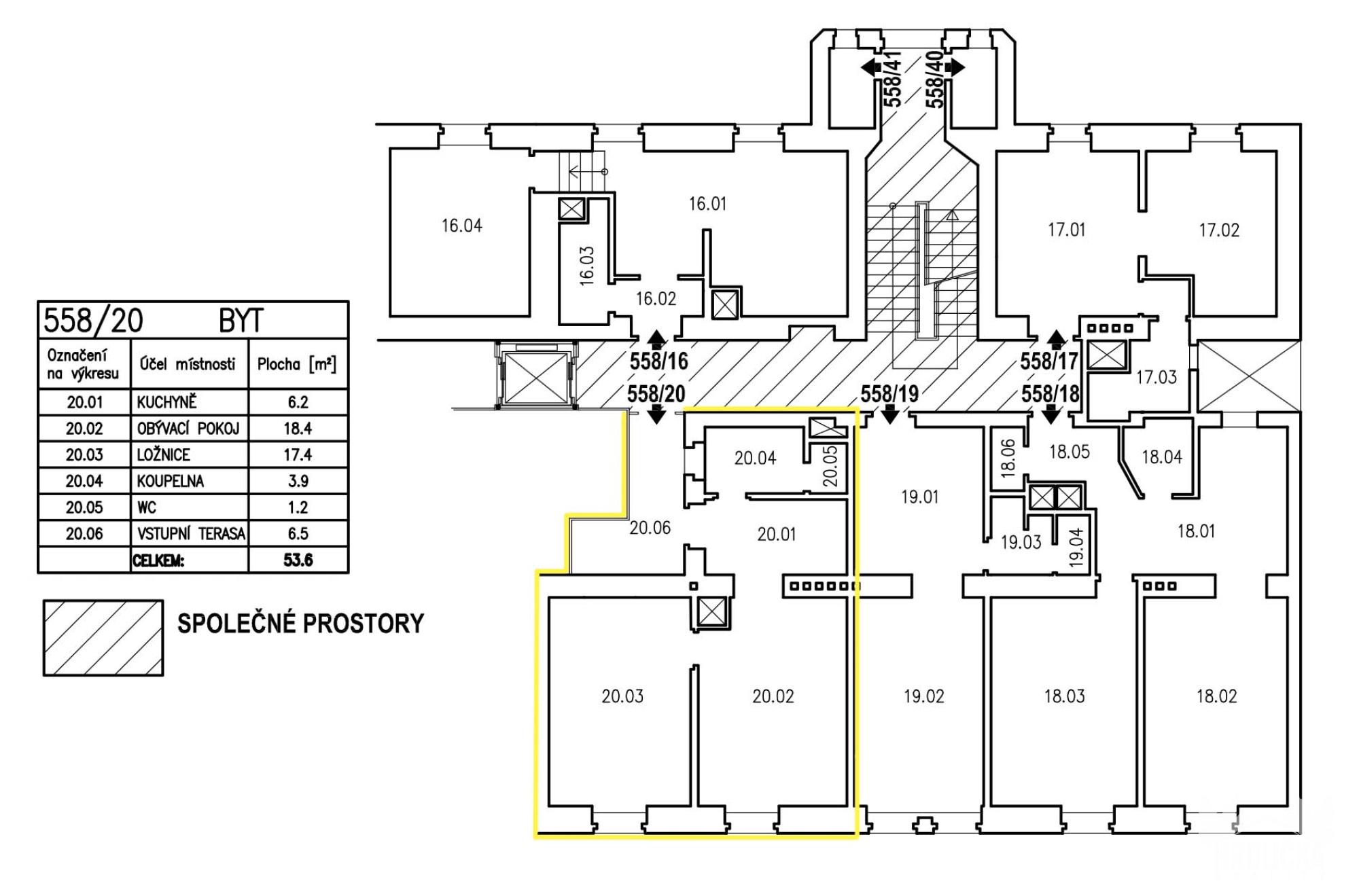
Nabízíme k prodeji bytovou jednotku o dispozici 2+1 a celkové užitné ploše 53,6 m², která se nachází v 5. patře činžovního domu v ulici Plzeňská 558/24, Praha 5 – Smíchov.
Předmětem prodeje je převod 100% obchodního podílu ve společnosti, jejímž jediným účelem je vlastnictví a správa této nemovitosti.
Okna bytu jsou orientována na jih do ulice. Jednotka je situovaná v domě, který prošel kompletní rekonstrukcí přibližně před 15 lety (výměna oken za plastová, výtah, obnova společných prostor).
Byt je v udržovaném stavu a nabízí zděné bytové jádro, které nevyžaduje rekonstrukci. Dispozice zahrnuje prostorný pokoj (18,4 m²), ložnici (17,4 m²), kuchyň (6,2 m²) s jídelním koutem, chodbu (6,5 m²), koupelnu (3,9 m²) a samostatné WC (1,2 m²). K jednotce náleží sklepní kóje o velikosti cca 1,5 m².
Nemovitost je napojena na elektřinu 230 V, plyn i veřejný vodovod. Ohřev vody i vytápění je řešen plynovým systémem. Okna jsou plastová a nejsou nutné žádné zásadní investice.
Vlastnictví je osobní, bez zástav a bez hypotéky. Na fasádě je vedeno technické zařízení Dopravního podniku – jedná se o věcné břemeno, které nemá vliv na užívání bytu.
Měsíční náklady spojené s užíváním bytu činí 3.145 Kč + elektřina.
Parkování je možné na veřejných parkovacích místech v okolí domu, případně v placených zónách.
Lokalita Smíchova nabízí výjimečnou občanskou vybavenost – v bezprostřední blízkosti se nachází nákupní centrum Nový Smíchov, stanice metra, široká síť MHD, obchody, služby, školy i velké množství restaurací. Centrum města je dostupné během několika minut.
Byt je vhodný jak pro vlastní bydlení, tak jako investice. Aktuálně je pronajatý s čistým měsíčním výnosem 14.500 Kč, což z něj činí atraktivní investiční příležitost. Prohlídky jsou možné kdykoliv po domluvě. Interierové fotografie na vyžádání.
| č. ev.: | 25J214 |
| Okres: | Praha |
| Obec, část obce: | Praha, Praha 5 - Smíchov |
| Adresa: | Plzeňská |
| Kategorie: | Byty |
| Dispozice: | 2+1 |
| Typ domu: | Zděný |
| Cena: | 7.990.000,- Kč |
| Plocha celkem: | 53 m2 |
| Elektřina: | 230/400 V |
| Energetická náročnost: | G - mimořádně nehospodárná |
| Voda: | Veřejný vodovod |
| Odpady: | Veřejná kanalizace |
| Plyn: | Ano |
| Topení: | Út - plynový kotel |
| Tepelné izolace: | Ne |
